
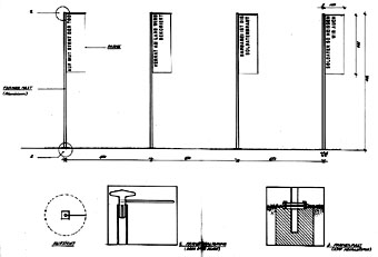
| Quatre mâts sont posés tous les 4,50 mètres sur une ligne droite à la même distance les uns des autres. Partant de l'accueil général, un chemin de graviers de 10 mètres nous conduit, à travers champs, jusqu'aux pieds des drapeaux. A côté de l'accueil se trouve un stand informant sur le lieu, on y trouve aussi la plaque commémorative dressée au sol. Les drapeaux sont blancs et portent chacun, dans une écriture rouge, l'un des textes suivants : |
![]() | ![]() | ![]() | ![]() |
NOUS NOMMONS AUSSI |
